Inhalt

Index

Skew: Skew methods

Stair, defining the stair’s line of travel and geometry

When you have defined the outline of the stair, you can use the Skew parameter to specify a skew method.

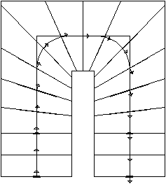
Skew is the term used to describe a staircase where the orientation of the front edge of each step deviates from that of the previous step by a given angle. First, click Angl (for Skew Angle) to determine the angle between the top and bottom steps.

If the angle between the individual steps has been set with Fixed Angle, the difference in the angle and the skew between two consecutive steps (= skew section) is determined. You can use the Skew parameter to select a skew method.

Note: The skew methods provided by Allplan are based on pure mathematics. This helps you find the skew that is best suited to the stair at hand.
The resulting skew is not based on the regulations, rules and minimum dimensions laid down in DIN 18065:2011-06 D. In order to comply with the standard, you may need to adjust the skew proposed by Allplan.

The following skew methods are available:

Skew 1, equal

Skew 2, linear

Skew 3, harmonic

Skew 4, geometrically optimized

Skew 5, proportional

Skew 6, semi-circle method




(C) ALLPLAN GmbH Datenschutzbestimmungen