Wall element design Parameters for reinforcement and fixtures + Lifting Bolts dialog box

Element side: turned for production --> upper edge of element --> turned element side
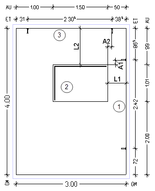
Adjacent opening
Upper edge of element: turned for production --> element side --> turned upper edge of element
Note: Taking the A1 or A2 offset into account, the program moves the lifting bolts only if the distance between the element side and the opening or the distance between the upper edge of the element and the opening is less than the L1 or L2 offset.
| (C) Allplan GmbH | Privacy policy |